아파트

본문 바로가기


아파트
무계동
내덕동
부곡동
신문동
삼문동
대청동
관동동
율하동
장유동

본문

매물지역 부곡동 석봉4단지부영
중개대상물 종류 공동주택
매물분류 매매
소재지 경남 김해시 부곡동 1167 동호 407동
사용승인일 2004-02-25 해당층/총층 5층/총20층
총세대수 1010 세대 방향 (거실기준) 남동
총주차대수 1020 (세대당 1대) 입주가능일 즉시입주가능
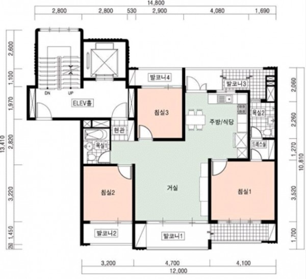
공급/전용면적 100.91 ㎡ / 80.88 ㎡
방수/욕실수 3 / 2 매매가 16,200만원
난방방식 지역난방 보증금/월세
현관구조 계단식 상담문의 장유21공인중개사
월평균 관리비 265,000원(수도.전기.난방.tv수신료.일반관리비.기타관리비 포함, 관리규약 등에 따라 부과, 최근 1년간 월평균) 연락처 055-329-2121
010-5533-0963
매물특징

공실, 올수리, 집상태 좋음, 코아상권이용편리. 

중개사사무소
장유21공인중개사사무소 대표 이호영 (등록번호 가-4316-4031)
김해시 금관대로599번길 29, 상가동 104호 (무계동, 석봉마을 부영아파트)
(연락처 : 055-329-2121)
이미지

  • 장유21공인중개사

    주소 : 경상남도 김해시 금관대로599번길 29 1층 104호(무계동 부영5차아파트상가)  대표자명 : 이호영  사업자등록번호 : 615-17-81711
    전화번호 : 055-329-2121  fax : 055-329-9300  Email : for6066@naver.com   중개사무소등록번호 : 가-4316-4031
       
    회사소개 개인정보취급방침 서비스이용약관 Copyright © jangyu21. All rights reserved.
    브라우저 최상단으로 이동합니다 브라우저 최하단으로 이동합니다