| 매물지역 | 대청동 갑오6단지부영 | ||
|---|---|---|---|
| 중개대상물 종류 | 공동주택 | ||
| 매물분류 | 매매 | ||
| 소재지 | 김해시 대청동 334-4 | 동호 | 608동 |
| 사용승인일 | 2002-07-25 | 해당층/총층 | 5층/총15층 |
| 총세대수 | 606 세대 | 방향 (거실기준) | 남 |
| 총주차대수 | 617 (세대당 1.01대) | 입주가능일 | 즉시입주가능 |
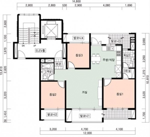
| 공급/전용면적 | 102.51 ㎡ / 80.74 ㎡ | ||
| 방수/욕실수 | 3 / 2 | 매매가 | 18,500만원 |
| 난방방식 | 지역난방 | 보증금/월세 | |
| 현관구조 | 계단식 | 상담문의 | 장유21공인중개사 |
| 월평균 관리비 | 259,000원(전기.수도.난방.TV수신료.일반관리비.기타관리비 포함, 최근 1년간 월평균, 관리규약 등에 따른 부과) | 연락처 | 055-329-2121 010-5533-0963 |
| 매물특징 |
*공실. *올수리, 거실 및 작은방 확장, 안방 및 작은방 붙박이장, 창틀교체, 미세방충망 교체
|
||
| 중개사사무소 |
장유21공인중개사사무소 대표 이호영 (등록번호 가-4316-4031)
김해시 금관대로599번길 29, 상가동 104호 (무계동, 석봉마을 부영아파트) (연락처 : 055-329-2121) |
||
| 이미지 | |||
장유21공인중개사
주소 : 경상남도 김해시 금관대로599번길 29 1층 104호(무계동 부영5차아파트상가) 대표자명 : 이호영 사업자등록번호 : 615-17-81711