아파트

본문 바로가기


아파트
무계동
내덕동
부곡동
신문동
삼문동
대청동
관동동
율하동
장유동

본문

매물지역 부곡동 월산12단지부영
중개대상물 종류 공동주택
매물분류 매매
소재지 김해시 부곡동 806-3 동호 1201동
사용승인일 2001-12-22 해당층/총층 4층/총15층
총세대수 335 세대 방향 (거실기준) 남서
총주차대수 356 (세대당 1.06대) 입주가능일 2026.04.30(이후)
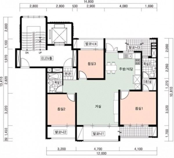
공급/전용면적 102.74 ㎡ / 80.74 ㎡
방수/욕실수 3 / 2 매매가 15,500만원
난방방식 - 보증금/월세
현관구조 계단식 상담문의 장유21공인중개사
월평균 관리비 270000원(전기.수도.난방.TV수신료.일반관리비.기타관리비, 최근 1년간 월평균, 관리규약에 따라 청구, 사용량 등에 따라 편차 존재함) 연락처 055-329-2121
010-5533-0963
매물특징

화이트톤올수리, 집상태 좋음, 이사협의가능.

중개사사무소
장유21공인중개사사무소 대표 이호영 (등록번호 가-4316-4031)
김해시 금관대로599번길 29, 상가동 104호 (무계동, 석봉마을 부영아파트)
(연락처 : 055-329-2121)
이미지

  • 장유21공인중개사

    주소 : 경상남도 김해시 금관대로599번길 29 1층 104호(무계동 부영5차아파트상가)  대표자명 : 이호영  사업자등록번호 : 615-17-81711
    전화번호 : 055-329-2121  fax : 055-329-9300  Email : for6066@naver.com   중개사무소등록번호 : 가-4316-4031
       
    회사소개 개인정보취급방침 서비스이용약관 Copyright © jangyu21. All rights reserved.
    브라우저 최상단으로 이동합니다 브라우저 최하단으로 이동합니다